启东市龙盛石化设备制造有限公司

联系我们

启东市龙盛石化设备制造有公司

地址:启东市汇龙工业园区杨沙路18

邮编:226200

邮箱:qdsls@www.qdsls.cn

   13951335027@139.com

电话:0513-83353586  13951335068

传真:0513-83350849

网址:www.www.qdsls.cn

消声设备

您的当前位置:首 页>> 产品中心 >> 消声设备

LS-ODP型低压氧气放散消声器

  • 所属分类:消声设备

  • 点击次数:0
  • 发布日期:2016-10-26
详细介绍
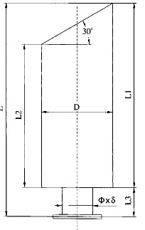
结构形式

  本系列消声器是一种节流扩散、耐热吸声复合式消声器,内部结构采用了抗燃性能好的不锈钢及铝合金。

◎适用范围
  主要用于降低空气分离装置和氧气压缩机后放散氧气时产生的动力噪声。适用压力:p≤1 . 0 M P a,消声量:3 0~4 0 d B(A),使用温度:T<200℃。
◎规格、性能、外形尺寸