启东市龙盛石化设备制造有限公司

联系我们

启东市龙盛石化设备制造有公司

地址:启东市汇龙工业园区杨沙路18

邮编:226200

邮箱:qdsls@www.qdsls.cn

   13951335027@139.com

电话:0513-83353586  13951335068

传真:0513-83350849

网址:www.www.qdsls.cn

精细过滤设备

您的当前位置:首 页>> 产品中心 >> 精细过滤设备

非金属滤芯精细过滤器

  • 所属分类:精细过滤设备

  • 点击次数:0
  • 发布日期:2016-10-26
详细介绍
◎产品型号标注
◎LSN-Ⅰ型线缠绕式精细过滤器
  其滤件是由纺织纤维纱精密缠绕在多孔骨架上,控制滤层缠绕密度及滤孔形状而制成不同过滤精度的滤芯,具有优良的深层过滤效果,良好的化学相容性。线缠绕式精细过滤器能有效除去液体中悬浮物、微粒。过滤精度0.5μm~100μm。
◎LSN-Ⅱ型聚丙烯纤维毡折叠式精细过滤器
  其滤件是由聚丙烯超细纤维毡经折叠而制成的滤芯。聚丙烯纤维毡折叠式精细过滤器具有处理量大、过滤效率高、阻力小、无纤维脱离、可杀菌消毒等特点。过滤精度0.1μm~100μm。
◎LSN-Ⅲ型微孔塑料滤芯精细过滤器

  其滤件是由高分子量聚乙烯烧结成型.具有刚性好、重量轻、孔隙率高、可反冲洗再生、无毒、耐蚀.过滤精度0.5μm~100μm。


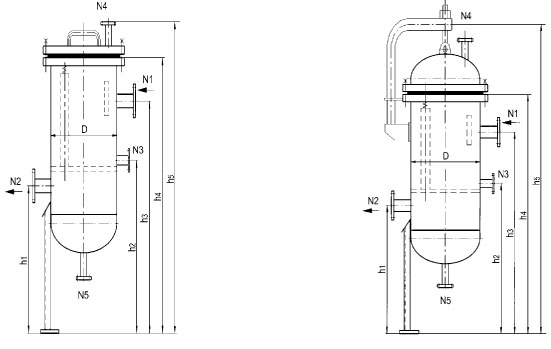
非金属滤芯精细过滤器结构典型结构及尺寸
注:1.滤芯数指折合标准型滤芯(10”长)数目。
2.本图适用于DN≤500,由于工艺参数各不相同,因此,在订货时,我公司将按实际的工艺参数作适当修正。

注:1.滤芯数指折合标准型滤芯(10”长)数目。
2.本图适用于DN≥500,由于工艺参数各不相同,因此,在订货时,我公司将按实际的工艺参数作适当修正。